Apartamento t2 com Jardim na Lapa

709 224€

  • 2
  • 2
  • 4
  • Utilizable: 111m2
  • Suelo: 160m2
  • C.E.: Exento
  • Año: 2021
  • Ref: 44871-MCNL60356

Ubicación

Lisboa, Lisboa, Estrela, Arredores (Lapa)

Descripción

Junto á Tapa das Necessidades, a cinco minutos do Jardim e Basílica da Estrela , a cinco minutos da nova CUF Tejo, a oito minutos do centro comercial Amoreiras e da Ponte 25 de Abril.

É aqui no centro da Lapa que se encontra este fantástico T2 em Prédio de típico Azulejo Português NOVO A ESTREAR com suite e cozinha equipada + Anexo com WC e kitchenette separados por um fantástico Jardim privativo no centro da cidade de Lisboa.
Não perca tempo e marque já a sua visita o quanto antes.

Sempre ao seu dispor
Mais consultores Imobiliária

Atributos

  • Janelas vidro duplo
  • Ar condicionado
  • Cozinha Equipada
  • Elevador
  • Arrecadação
  • Porta de Segurança
  • Jardim
  • Vídeo Porteiro
  • Suite

Divisiones

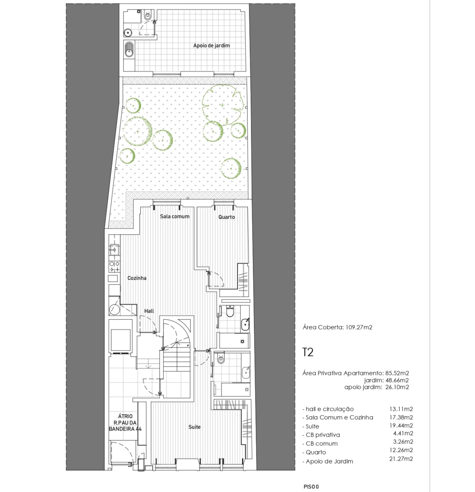
Blueprints

Nombre del piso: Piso 0

División Área Nota
Dormitorio 1226.00m2
Suite 1944.00m2
Hall de entrada 1311.00m2
Kitchenette 1738.00m2
Jardín 2127.00m2
Almacenamiento bajo la escalera 2127.00m2
WC Suite
WC Completo
WC Completo
Kitchenette